
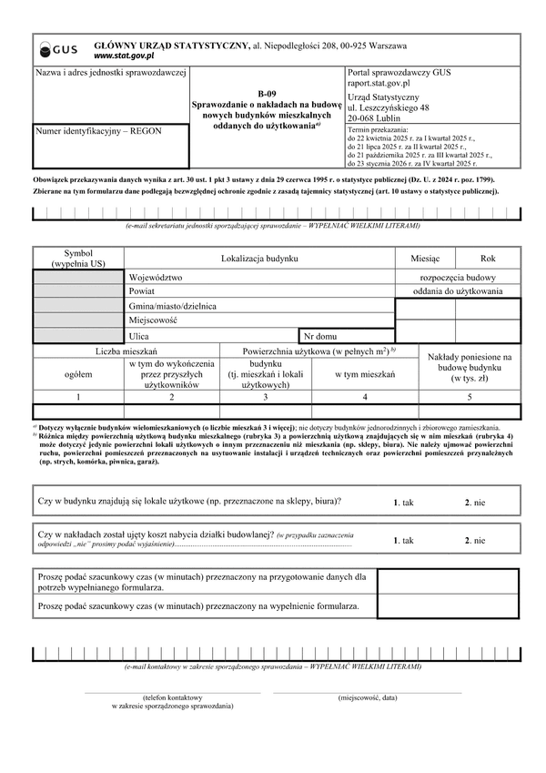
Formularz B-09 przekazuje się do: Urzędu Statystycznego, ul. Leszczyńskiego 48, 20-068 Lublin
Termin przekazania sprawozdania: do 22 kwietnia 2025 r. za I kwartał 2025 r., do 21 lipca 2025 r. za II kwartał 2025 r., do 21 października 2025 r. za III kwartał 2025 r., do 23 stycznia 2026 r. za IV kwartał 2025 r.
Obowiązek przekazywania danych wynika z art. 30 ust. 1 pkt 3 ustawy z dnia 29 czerwca 1995 r. o statystyce publicznej (Dz. U. z 2024 r. poz. 1799).
Zbierane na tym formularzu dane podlegają bezwzględnej ochronie zgodnie z zasadą tajemnicy statystycznej (art. 10 ustawy o statystyce publicznej).
Obwieszczenie Marszałka Sejmu Rzeczypospolitej Polskiej z dnia 27 listopada 2024 r. w sprawie ogłoszenia jednolitego tekstu ustawy o statystyce publicznej (Dz.U. 2024 poz. 1799)
PAMIĘTAJ! Gdy wypełnisz formularz - przeczytaj go uważnie w wersji ostatecznej lub skonsultuj się ze specjalistą! Udostępnione przez nas wzory druków, formularzy, pism, deklaracji lub umów należy zawsze właściwie przetworzyć, uzupełnić lub dopasować do swojej sytuacji.
Pamiętaj, że podpisując dokument kształtujesz nim swoje prawa lub obowiązki, zatem zachowaj należytą uwagę przy zmianach i jego wypełnianiu. Ze względu na niepowtarzalność każdej czynności, samodzielnie lub na podstawie opinii specjalisty musisz ocenić, czy wykorzystany formularz zastał zastosowany przez Ciebie odpowiednio do stanu faktycznego, prawnego lub zamierzonego celu.
Dołącz do programu resellerskiego i zostań specjalistą od przyjaznych formularzy, e-deklaracji i e-administracji, ponieważ fillup to formalności wypełnione.