
Od 1 lipca 2021 wnioski do rejestru przedsiębiorców KRS trzeba składać elektronicznie za pośrednictwem systemu https://prs.ms.gov.pl/ Natomiast podmioty jak stowarzyszenia i inne organizacje społeczne oraz zawodowe, fundacje i SP ZOZ mogą składać wnioski w formie papierowej, ale również mają możliwość składania wniosków w wersji elektronicznej.
Wniosek KRS-ZR stanowi załącznik do formularza o zmianę wpisu w Krajowym Rejestrze Sądowym (KRS-Z61, KRS-Z63,KRS-Z64). KRS-ZR wraz formularzem głównym składa się do sądu rejonowego (sądu gospodarczego) właściwego ze względu na siedzibę lub miejsce zamieszkania podmiotu, którego wpis dotyczy. Wniosek można złożyć w biurze podawczym właściwego sądu lub nadać w urzędzie pocztowym na adres sądu.
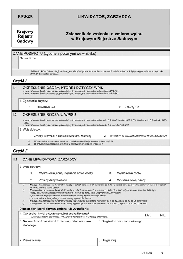
W części pierwszej należy określić osobę, której dotyczy zgłoszenie(likwidatora, zarządcy, przedstawiciela/reprezentanta upadłego).
Jeśli osób, których dane uległy zmianie jest więcej niż jedna, informacje o pozostałych należy wpisać na kolejnych egzemplarzach załącznika KRS-ZR.
Formularz należy wypełnić w języku polskim, czytelnie, na maszynie, komputerowo lub ręcznie, wielkimi, drukowanymi literami.
Wnioskodawca wypełnia pola jasne.
We wszystkich wypełnianych polach, w których występuje możliwość wyboru, należy wstawić X w jednym odpowiednim kwadracie.
Formularz ma w programie fillUp włączoną opcję automatycznego przekreślania niewypełnionych pól. Przekreślenia pustych pól będą widoczne dopiero na wydrukowanym formularzu.
Wniosek złożony z naruszeniem przepisu art.19 ust. 2 ustawy o Krajowym Rejestrze Sądowym lub nieprawidłowo wypełniony podlega zwróceniu, bez wzywania o uzupełnienie braków.
Więcej informacji: Biuletyn informacji publicznej Ministerstwa Sprawiedliwości.
Rozporządzenie Ministra Sprawiedliwości z dnia 11 stycznia 2024 r. zmieniające rozporządzenie w sprawie określenia wzorów urzędowych formularzy wniosków o wpis do Krajowego Rejestru Sądowego oraz sposobu i miejsca ich udostępniania (Dz.U. 2024 poz. 65) - załącznik nr 10
PAMIĘTAJ! Gdy wypełnisz formularz - przeczytaj go uważnie w wersji ostatecznej lub skonsultuj się ze specjalistą! Udostępnione przez nas wzory druków, formularzy, pism, deklaracji lub umów należy zawsze właściwie przetworzyć, uzupełnić lub dopasować do swojej sytuacji.
Pamiętaj, że podpisując dokument kształtujesz nim swoje prawa lub obowiązki, zatem zachowaj należytą uwagę przy zmianach i jego wypełnianiu. Ze względu na niepowtarzalność każdej czynności, samodzielnie lub na podstawie opinii specjalisty musisz ocenić, czy wykorzystany formularz zastał zastosowany przez Ciebie odpowiednio do stanu faktycznego, prawnego lub zamierzonego celu.
Dołącz do programu resellerskiego i zostań specjalistą od przyjaznych formularzy, e-deklaracji i e-administracji, ponieważ fillup to formalności wypełnione.